Paleta de materiais de decoração com diferentes texturas, cores e acabamentos, incluindo azulejos, amostras de tecido, cores, e detalhes de acabamento.

apto | AM

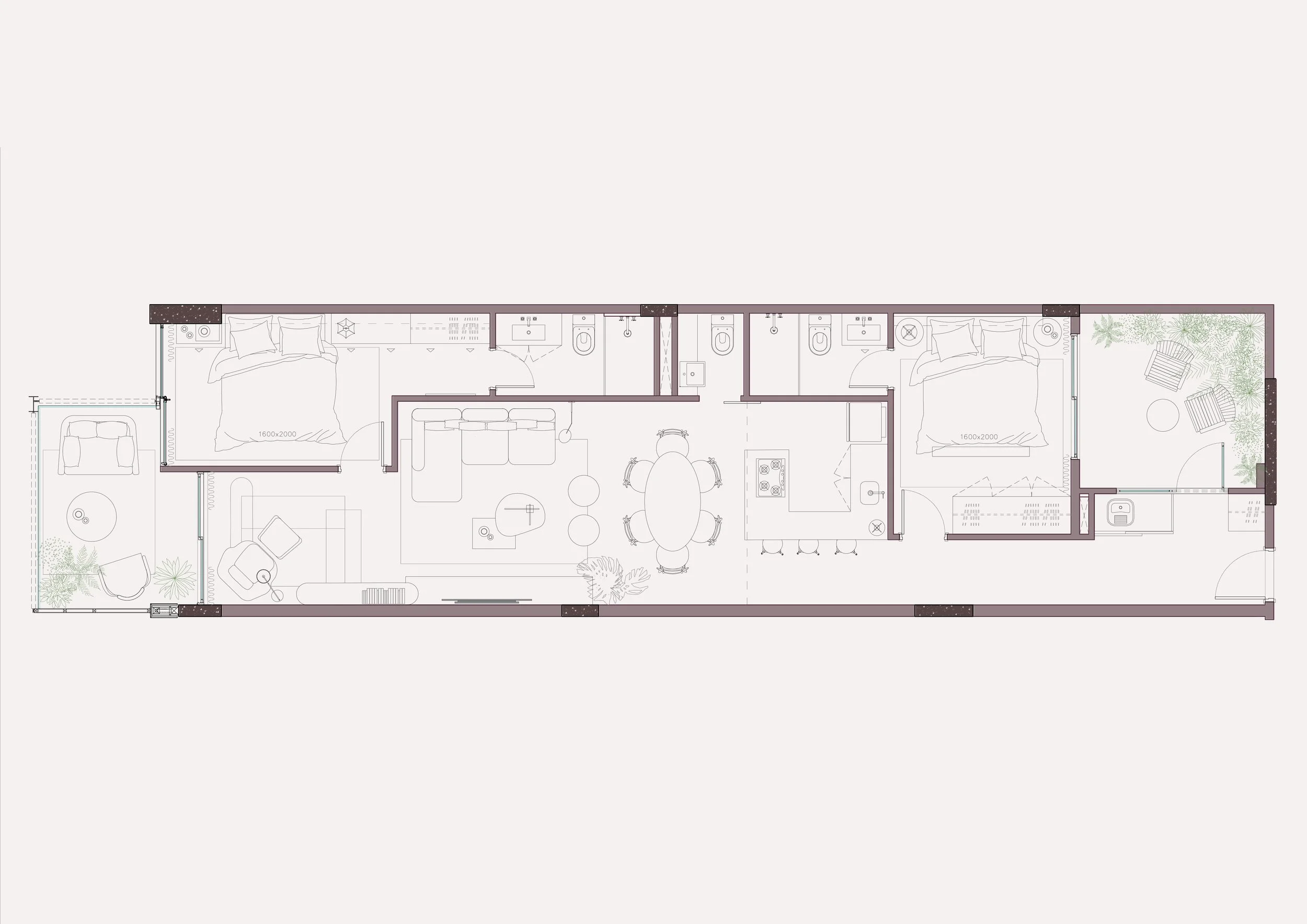
Projeto para apartamento em Ipanema que foi comprado pelo cliente para investimento. A ideia era aproveitar ao máximo a estrutura entregue pela construtora, mas trazer personalidade, calor e afeto para os ambientes.

Assim, idealizamos todos os ambientes com a base neutra e algumas soluções de ótimo custo benefício que se tornam o diferencial do apartamento: misturas de cores, texturas, padronagens e uma boa iluminação indireta proposta em todo o apartamento.

O resultado não poderia ser melhor: projeto leve e descontraído, que aspira jovialidade e tem tudo a ver com o que o Rio de Janeiro tem de melhor!

Local: Ipanema, RJ
Metragem: m2
Ano de conclusão: [ em obras ]
Render: @studiojota.design